
Immobilière de l'étoile
Grand place, 2boite 3
7140
Morlanwelz
Belgique
L’Immobilière de l’Étoile vous présente cette spacieuse maison située à Forchies-la-Marche, bénéficiant d’un environnement pratique et accessible grâce à la proximité immédiate de nombreuses commodités.
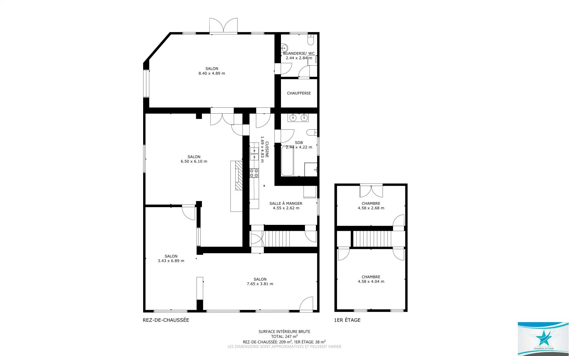
Le rez-de-chaussée propose de grands espaces modulables : une vaste pièce à l’avant idéale comme salon ou pour une activité complémentaire/professionnelle, deux autres pièces de vie pouvant être aménagées selon vos besoins, une cuisine centrale, une salle à manger, une salle de bain équipée d’une baignoire et d’une douche, une buanderie et une chaufferie.
À l’étage se trouvent deux chambres confortables (12,27 m² et 18,50 m²) ainsi qu’un grenier aménageable offrant un beau potentiel d’extension.
L’extérieur comprend un jardin et un passage latéral menant à un hangar d’environ 230 m², idéal pour une activité indépendante, du stockage, un atelier ou tout autre projet demandant un large espace couvert.
Proximités :
• Commerces et supermarchés accessibles rapidement
• Écoles maternelles et primaires à quelques minutes
• Arrêts de bus proches, facilitant les déplacements
• Gare de Forchies à courte distance
• Accès rapide aux axes principaux (R3, N90…)
• Pharmacie, boulangerie, restaurants et services à proximité immédiate
• Espaces verts et parcs à quelques minutes
Caractéristiques : chauffage au mazout, châssis double vitrage en bois, cave.
PEB : G – Numéro 20250706005899.
Prix : offre à partir de 379.000 €.
Pour informations ou visites :
0486/54.99.26 – 0496/81.69.09

Grand place, 2boite 3
7140
Morlanwelz
Belgique
Ce site est protégé par reCAPTCHA et les règles de confidentialité et les conditions d'utilisation de Google s'appliquent.