
Immobilière de l'étoile
Grand place, 2boite 3
7140
Morlanwelz
Belgique
L’Immobilière de l’Étoile vous propose cette agréable maison 2 façades avec jardin et garage, située au 55, Rue Duchateau – 7100 Haine-Saint-Pierre.
Son atout principal : un studio déjà aménagé à l’arrière de la maison, avec entrée privative, parfait pour accueillir une profession libérale, développer une activité complémentaire ou encore offrir un espace indépendant à un proche.
⸻
Description du bien
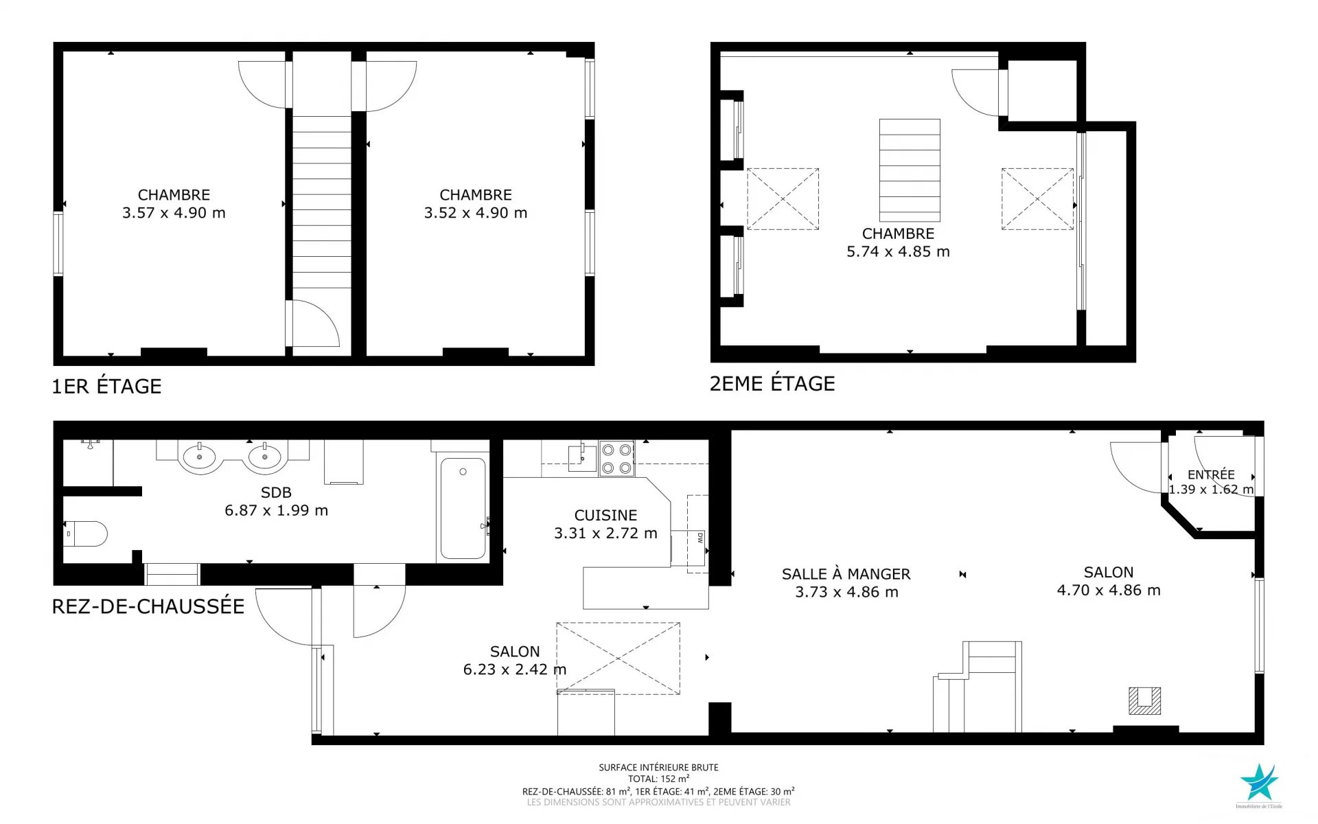
Rez-de-chaussée
• Living spacieux
• Salle à manger
• Cuisine équipée
• Salon
• Salle de bain
À l’étage
• 2 chambres confortables
Grenier
• Aménagé en grande chambre
Extérieurs et annexes
• Terrasse
• Jardin
• Garage
• Studio indépendant avec entrée privative
⸻
Confort et équipements
• Chauffage au gaz
• Revenu cadastral net : 698 €
• Superficie du terrain : 3 ares 83 ca
• PEB : E
• Numéro du PEB : 20210204008229
⸻
Situation et proximité
• Accès rapides aux grands axes
• Transports en commun à proximité
• Écoles accessibles
• Commerces proches
⸻
Prix
Faire offre à partir de 239 000 €
📺 Vidéo YouTube de présentation : https://youtu.be/wbw7YVPLl9c
⸻
📞 Pour plus d’informations ou organiser une visite, contactez :
Siham Belhmira – L’Immobilière de l’Étoile
Tél. : 0486/54.99.26 – 0498/010.010
Grand place, 2boite 3
7140
Morlanwelz
Belgique
Ce site est protégé par reCAPTCHA et les règles de confidentialité et les conditions d'utilisation de Google s'appliquent.